45560 Georgia Street, PAISLEY, FL 32767
Active
Property Photos
Would you like to sell your home before you purchase this one?
Priced at Only: $269,000
For more Information Call:
Address: 45560 Georgia Street, PAISLEY, FL 32767
Property Location and Similar Properties
- MLS#: O6382217 ( Residential )
- Street Address: 45560 Georgia Street
- Viewed: 20
- Price: $269,000
- Price sqft: $168
- Waterfront: No
- Year Built: 2026
- Bldg sqft: 1600
- Bedrooms: 3
- Total Baths: 2
- Full Baths: 2
- Days On Market: 53
- Additional Information
- Geolocation: 29.0125 / -81.5018
- County: LAKE
- City: PAISLEY
- Zipcode: 32767
- Subdivision: Lakeview Park
- Elementary School: Seminole Springs. Elem
- Middle School: Umatilla
- High School: Umatilla
- Provided by: PREMIUM PROPERTIES R.E. SERVICE
- Contact: Darryl Anglin
- 407-380-2800

- DMCA Notice
-
DescriptionPre Construction. To be built. Pre Construction. To be built. Photos are renderings of the XYZ Model. Buyer may select finishes. Base price includes standard features; upgrades additional. Estimated build time 810 months from contract.
Payment Calculator
- Principal & Interest -
- Property Tax $
- Home Insurance $
- HOA Fees $
- Monthly -
Features
Building and Construction
- Covered Spaces: 0.00
- Exterior Features: None
- Flooring: Linoleum
- Living Area: 1600.00
- Roof: Shingle
Property Information
- Property Condition: Pre-Construction
Land Information
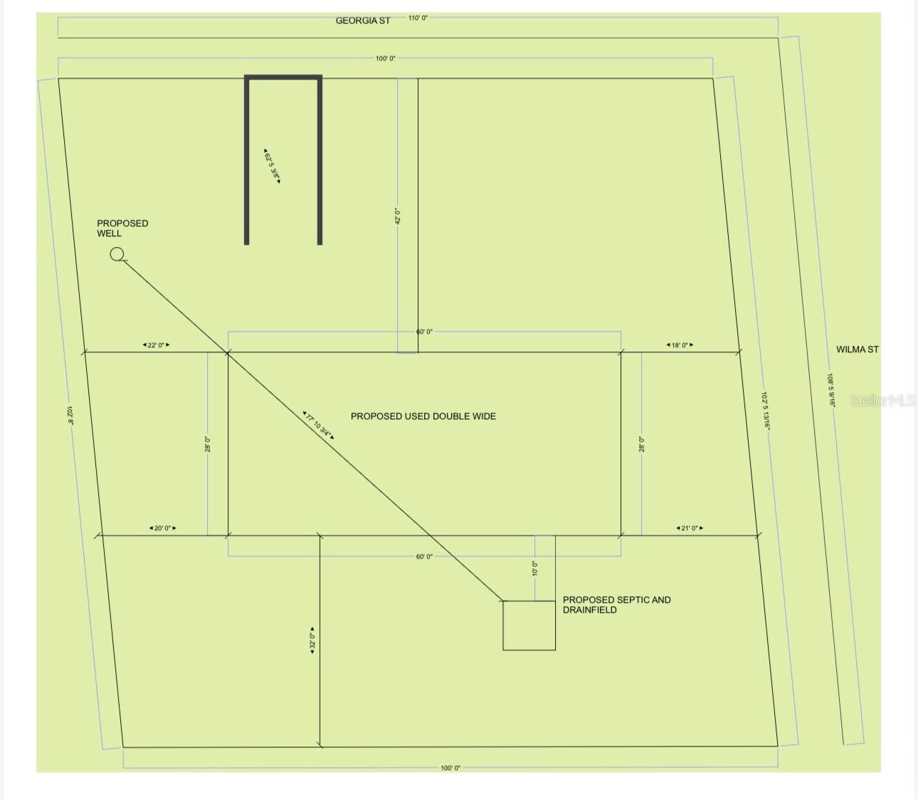
- Lot Features: Corner Lot, Paved
School Information
- High School: Umatilla High
- Middle School: Umatilla Middle
- School Elementary: Seminole Springs. Elem
Garage and Parking
- Garage Spaces: 0.00
- Open Parking Spaces: 0.00
Eco-Communities
- Water Source: Well Required
Utilities
- Carport Spaces: 0.00
- Cooling: Central Air
- Heating: Heat Pump
- Sewer: Septic Needed
- Utilities: BB/HS Internet Available, Cable Available, Electricity Available
Finance and Tax Information
- Home Owners Association Fee: 0.00
- Insurance Expense: 0.00
- Net Operating Income: 0.00
- Other Expense: 0.00
- Tax Year: 2025
Other Features
- Appliances: Dishwasher, Electric Water Heater, Range, Refrigerator
- Country: US
- Furnished: Unfurnished
- Interior Features: Ceiling Fans(s), Eat-in Kitchen, Living Room/Dining Room Combo, Walk-In Closet(s)
- Legal Description: LAKEVIEW PARK LOTS 20 TO 23 INCL BLK 11 PB 5 PG 63 ORB 6566 PG 89
- Levels: One
- Area Major: 32767 - Paisley
- Model: Lake Manor 2860H32P01
- Occupant Type: Vacant
- Parcel Number: 15-17-28-0200-011-02000
- Possession: Close Of Escrow
- View: Trees/Woods
- Views: 20
- Zoning Code: R-7
Nearby Subdivisions
- Dawn Morgan, AHWD,Broker,CIPS
- Residential Movement Real Estate Group
- 352.454.2363
- Mobile: 352.454.2363
- dawnsellsocala@gmail.com









