1324 7th Avenue, TAMPA, FL 33605
Active
Property Photos
Would you like to sell your home before you purchase this one?
Priced at Only: $893,200
For more Information Call:
Address: 1324 7th Avenue, TAMPA, FL 33605
Property Location and Similar Properties
- MLS#: TB8455624 ( Commercial Lease )
- Street Address: 1324 7th Avenue
- Viewed: 18
- Price: $893,200
- Price sqft: $50
- Waterfront: No
- Year Built: 1905
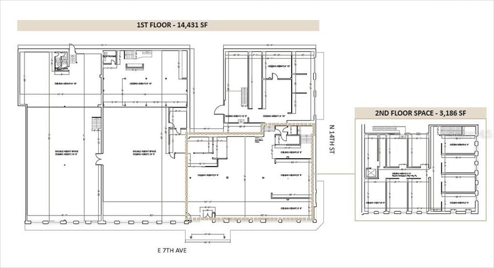
- Bldg sqft: 17864
- Days On Market: 95
- Additional Information
- Geolocation: 27.9605 / -82.4446
- County: HILLSBOROUGH
- City: TAMPA
- Zipcode: 33605
- Subdivision: Ybor City Blk Y
- Provided by: FLORIDA COMMERCIAL GROUP
- Contact: Tina Marie Eloian
- 813-935-9600

- DMCA Notice
-
DescriptionSituated in the heart of Ybor City right on 7th Avenue, this historic brick building offers a rare opportunity to secure space on the main thoroughfare of East Tampas vibrant district. With over 17,000 square feet available, the property is ideal for office, retail, or restaurant use and can be subdivided to fit your needs. Ample onsite parking is included, and tenant improvements options are available to support your build to suit vision.
Payment Calculator
- Principal & Interest -
- Property Tax $
- Home Insurance $
- HOA Fees $
- Monthly -
Features
Building and Construction
- Covered Spaces: 0.00
- Living Area: 21555.00
Property Information
- Property Condition: Fixer
Garage and Parking
- Garage Spaces: 0.00
- Open Parking Spaces: 0.00
Utilities
- Carport Spaces: 0.00
- Cooling: Central Air
- Road Frontage Type: City Street, Main Throrughfare
Finance and Tax Information
- Home Owners Association Fee: 0.00
- Insurance Expense: 0.00
- Net Operating Income: 0.00
- Other Expense: 0.00
- Tax Year: 2024
Rental Information
- Tenant Pays: Common Area Maintenance
Other Features
- Country: US
- Legal Description: YBOR CITY MAP E 46 1/2 FT OF LOT 9 AND LOT 10 BLOCK 29 TOGETHER WITH E 5.50 FT OF N 30 FT OF LOT 18 AND LOTS 20 AND 22 OF LE DUC'S RESUB
- Area Major: 33605 - Tampa / Ybor City
- Parcel Number: A-18-29-19-50N-000029-00009.0
- Views: 18
- Zoning Code: YC-1
Owner Information
- Owner Pays: Other
- Dawn Morgan, AHWD,Broker,CIPS
- Residential Movement Real Estate Group
- 352.454.2363
- Mobile: 352.454.2363
- dawnsellsocala@gmail.com












