4102 Fairview Heights, TAMPA, FL 33616
Active
Property Photos
Would you like to sell your home before you purchase this one?
Priced at Only: $434,900
For more Information Call:
Address: 4102 Fairview Heights, TAMPA, FL 33616
Property Location and Similar Properties
- MLS#: TB8471700 ( Residential )
- Street Address: 4102 Fairview Heights
- Viewed: 6
- Price: $434,900
- Price sqft: $243
- Waterfront: No
- Year Built: 1958
- Bldg sqft: 1789
- Bedrooms: 3
- Total Baths: 2
- Full Baths: 2
- Garage / Parking Spaces: 2
- Days On Market: 35
- Additional Information
- Geolocation: 27.8782 / -82.5128
- County: HILLSBOROUGH
- City: TAMPA
- Zipcode: 33616
- Subdivision: Bay Breeze
- Elementary School: Lanier
- Middle School: Madison
- High School: Robinson
- Provided by: KELLER WILLIAMS RLTY NEW TAMPA
- Contact: Bobby Welbourn
- 813-994-4422

- DMCA Notice
-
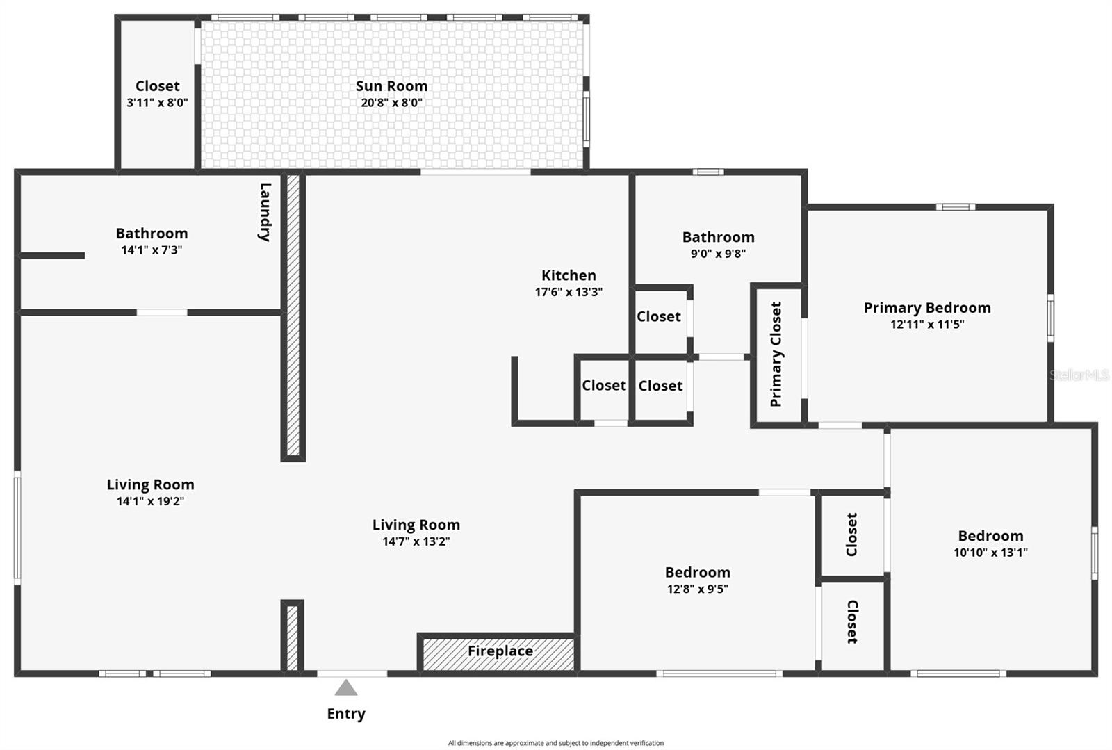
DescriptionPOOL HOME THAT IS CONVENIENT TO EVERYTHING!! Affordably priced pool home on a spacious corner lot. Enjoy affordable energy costs with the 6.38 KW solar system which will be paid off at closing and updated double pane windows. Floor plan includes 3 bedrooms plus an 8'x19' sunroom for bonus living space. Backyard offers privacy via the 6' vinyl fencing with extra storage in the 10'x14' utility shed. Location is second to none with shopping and restaurants just minutes away. Easy access to Dale Mabry Hwy or the crosstown Expressway. Very convenient location is only 2.9 miles to Macdill Air Force base, 7.2 miles to Amalie Arena, 7.2 miles to Raymond James Stadium, 8.6 miles to Tampa International Airport, and only 26 miles to Clearwater beach.
Payment Calculator
- Principal & Interest -
- Property Tax $
- Home Insurance $
- HOA Fees $
- Monthly -
Features
Building and Construction
- Covered Spaces: 0.00
- Exterior Features: Private Mailbox, Rain Gutters, Sidewalk
- Fencing: Vinyl, Wood
- Flooring: Laminate, Tile
- Living Area: 1483.00
- Roof: Shingle
Land Information
- Lot Features: Corner Lot, City Limits, Sidewalk, Paved
School Information
- High School: Robinson-HB
- Middle School: Madison-HB
- School Elementary: Lanier-HB
Garage and Parking
- Garage Spaces: 0.00
- Open Parking Spaces: 0.00
Eco-Communities
- Pool Features: Gunite, In Ground
- Water Source: Public
Utilities
- Carport Spaces: 2.00
- Cooling: Central Air, Mini-Split Unit(s)
- Heating: Central, Electric
- Pets Allowed: Yes
- Sewer: Public Sewer
- Utilities: BB/HS Internet Available, Cable Connected, Electricity Connected, Fire Hydrant, Sewer Connected, Water Connected
Finance and Tax Information
- Home Owners Association Fee: 0.00
- Insurance Expense: 0.00
- Net Operating Income: 0.00
- Other Expense: 0.00
- Tax Year: 2025
Other Features
- Appliances: Electric Water Heater, Microwave, Range, Refrigerator
- Country: US
- Furnished: Unfurnished
- Interior Features: Ceiling Fans(s)
- Legal Description: BAY BREEZE E 12 FT OF LOT 19 AND LOTS 20 AND 21 BLOCK 5
- Levels: One
- Area Major: 33616 - Tampa
- Occupant Type: Owner
- Parcel Number: A-16-30-18-41S-000005-00019.0
- Possession: Close Of Escrow
- Zoning Code: RS-75
Similar Properties
Nearby Subdivisions
Bay Breeze
Gandy Gardens 05
Gandy Gardens 1
Gandy Gardens 2
Gandy Gardens 3
Gandy Gardens 4
Gandy Gardens 5
Gandy Gardens 6
Gandy Gardens 7
Gandy Manor Add
Gandy Manor Estates
Interbay
Not Applicable
Port Tampa City Map
Port Tampa Communities Sub
Sunniland
Sunset Add
Treasure Park
Unplatted
West Port
Westshore Estates South 1st Ad
Westshore Yacht Club Ph 1
Westshore Yacht Club Ph 2
- Dawn Morgan, AHWD,Broker,CIPS
- Residential Movement Real Estate Group
- 352.454.2363
- Mobile: 352.454.2363
- dawnsellsocala@gmail.com


















































